Most elárulok egy titkot…
Ha a legújabb és legmenőbb enteriőr- bútor- világítástervezési irányzatokra vagy kíváncsi, el kell utazni Milánóba, a minden év tavaszán megrendezett iSaloni kiállításra.
Ebben a műfajban ez a legnagyobb kiállítás, amely egyben meg is határozza az elkövetkező évek trendjét. A klasszikusok mellett minden évben elképesztően sok újdonságot lehet találni.
De van egy másik módszer is: orosz lakberendezési oldalakat kell keresgélni a neten. Annak idején az olaszok diktálták a módit, aztán jöttek a skandinávok, majd elég meghatározóak lettek a hollandok.
Most azonban úgy látom, az oroszok is nagyon ráéreztek az enteriőr design-ra és a legkülöncebb, legmenőbb, legmeghökkentőbb enteriőröket náluk látni. Nem csak a stílust lehet ellesni, hanem az újfajta térszervezési irányzatokat is!
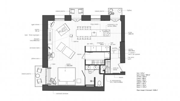
A legújabb kedvencem ez a szentpétervári egyterű kis apartman, közepén a feketedobozzal, ami a konyha egy részét, a gardróbot és az üvegfalú fürdőszobát rejti. Csodaszép anyagok és visszafogott színhasználat!
Külön jó pont, hogy alaprajz is van a képekhez.
Ez a lakás elnyerte a moszkvai Arany Diploma díjat, amit a kreatív helykihasználással és a klasszikus és modern elemek harmonikus használatával érdemelt ki.
Még több érdekesség a designdrOops! facebook oldalán! Nem maradj le, csatlakozz!
Képek: home-designing









Kommentek
Kommenteléshez kérlek, jelentkezz be: